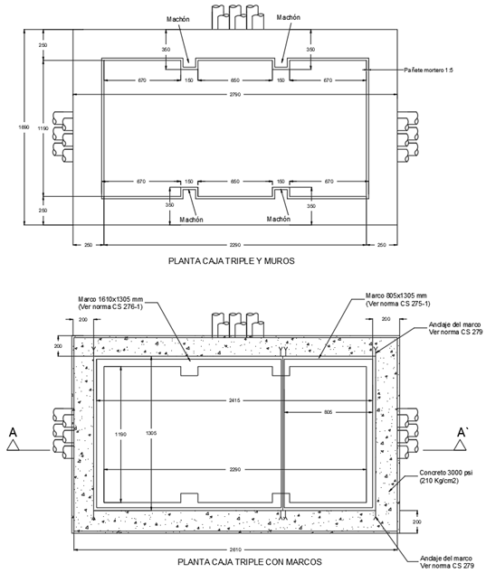
CS277 Caja de inspección triple para canalización de M.T.
- Contenido

NOTAS
- La construcción de este tipo de caja no será aceptada para zonas vehiculares ni entradas a garajes
- El marco de la caja triple se hace con un marco de caja doble y uno de caja sencilla.
- Dimensiones en milímetros
- La resistencia al concreto a la compresión será de 210 kg/cm2 (3000 psi).
- El elemento deberá ejecutarse con concreto de baja permeabilidad. Se recomienda el uso de aditivo Plastocrete o productos con propiedades equivalentes que garanticen una adecuada impermeabilidad. En el caso de la estructura en mampostería, se deberá utilizar mortero de baja permeabilidad, para lo cual se recomienda el empleo de Sika-1 o un aditivo con características técnicas similares. Estas condiciones buscan garantizar la durabilidad de la estructura y prevenir el ingreso de humedad o agentes agresivos, y deberán cumplirse conforme a la normativa vigente y a las exigencias técnicas del proyecto.
DATOS ADICIONALES
Revisión #
4
Fecha de entrada en vigencia
Actividad de los usuarios
Para hacer comentarios debe iniciar sesión o registrarse aquí