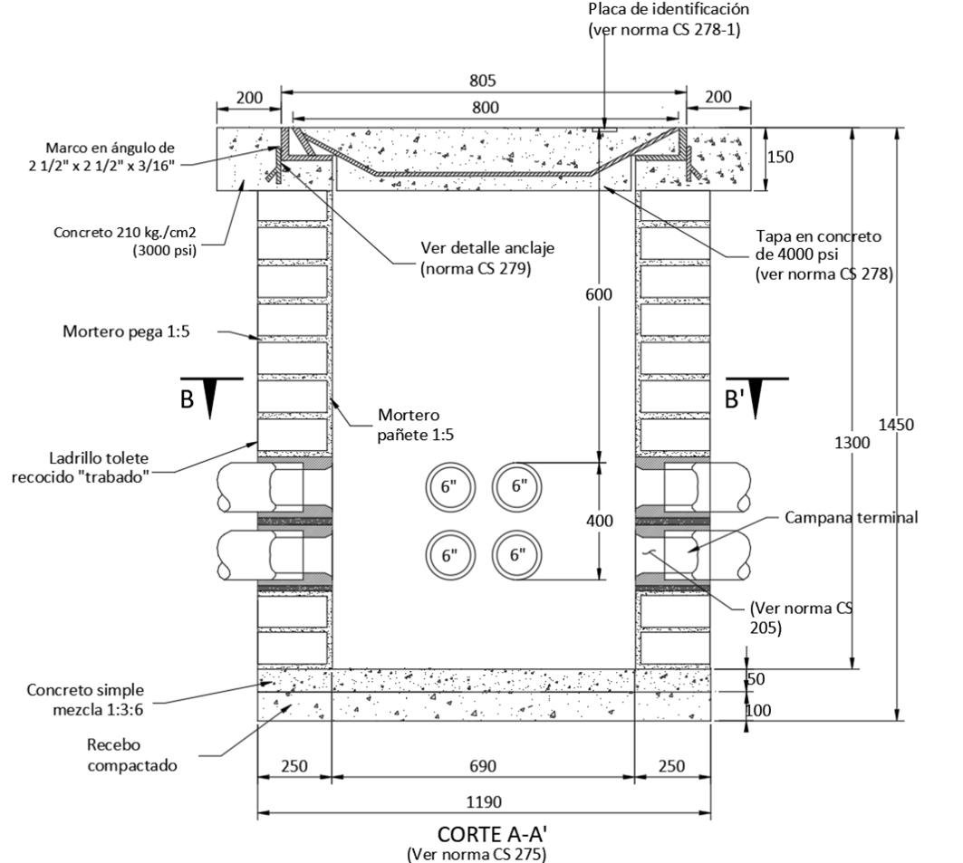
CS275-1 Caja de inspección sencilla para canalización de M.T. y B.T. (Corte A – A` y marco)
- Contenido


Notas
- La construcción de este tipo de caja no será aceptada para zonas vehiculares ni entradas de garajes.
- Para usar ducterias de 6" y 4" la profundidad de la caja es de 1.30 m y el espesor de las paredes de 250 mm.
- La resistencia al concreto a la compresión será de 210 kg/cm2 (3000 psi).
- En la ruta determinada del banco de ductos 6∅6", se permitirá construir caja de inspección sencilla CS275 en sentido transversal; para derivaciones de acometidas de BT y AP y como cajas de paso. En caso de derivaciones futuras por expansión de la red de MT se deben convertir a cajas de inspección dobles CS276.
- El elemento deberá ejecutarse con concreto de baja permeabilidad. Se recomienda el uso de aditivo Plastocrete o productos con propiedades equivalentes que garanticen una adecuada impermeabilidad. En el caso de la estructura en mampostería, se deberá utilizar mortero de baja permeabilidad, para lo cual se recomienda el empleo de Sika-1 o un aditivo con características técnicas similares. Estas condiciones buscan garantizar la durabilidad de la estructura y prevenir el ingreso de humedad o agentes agresivos, y deberán cumplirse conforme a la normativa vigente y a las exigencias técnicas del proyecto.
DATOS ADICIONALES
Revisión #
4
Fecha de entrada en vigencia
Actividad de los usuarios
Para hacer comentarios debe iniciar sesión o registrarse aquí