CS276-6 Caja de inspección doble para canalización de M.T. Y B.T. Corte A - A' y marco en calzada
- Contenido



NOTAS:
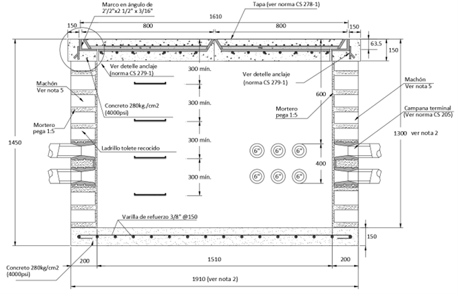
- Dimensiones en milímetros
- Para uso de ductos de 6” y 4” la profundidad de la caja es de 1.30 m y el espesor de las paredes de 200 mm
- La resistencia al concreto a la compresión será de 280 kg/cm2 (4000 psi).
- Ver CS290-5 Escalera de gato recubierta para ingreso a cajas de inspección. No se admite escalera de gato sin recubrimiento como se especifica en CS290-5.
- Machones de refuerzo ubicados en las esquinas, ver vista en planta (CS276-5) para el detalle del machón.
- El elemento deberá ejecutarse con concreto de baja permeabilidad. Se recomienda el uso de aditivo Plastocrete o productos con propiedades equivalentes que garanticen una adecuada impermeabilidad. En el caso de la estructura en mampostería, se deberá utilizar mortero de baja permeabilidad, para lo cual se recomienda el empleo de Sika-1 o un aditivo con características técnicas similares. Estas condiciones buscan garantizar la durabilidad de la estructura y prevenir el ingreso de humedad o agentes agresivos, y deberán cumplirse conforme a la normativa vigente y a las exigencias técnicas del proyecto.
- Esta disposición es exclusiva para calzada no aplica su uso en andenes
- Se deberá dejar al interior en el piso de la caja una perforación que atraviese la base de mínimo 5/8” de diámetro y la misma forrada con ducto PVC o similar y con tapón plástico de PVC o similar en alguno de los vértices separado mínimo 10 cm de la pared con el objetivo de poder instalar la varilla de acero y/o Cu de 15 mm de diámetro para realizar la puesta a tierra, en los casos que se requiera. EL Tapón tiene como objetivo evitar el ingreso de agua por lo cual debe quedar ajustado en la perforación.
DATOS ADICIONALES
Revisión #
0
Fecha de entrada en vigencia
Actividad de los usuarios
Para hacer comentarios debe iniciar sesión o registrarse aquí